
Депутат
Государственной Думы 7-го созыва В.Ф. Рашкин и депутат Госдумы 6-го созыва С.П.
Обухов продолжают оказывать помощь жителям города Краснодара при нарушениях органами
власти земельного и градостроительного законодательства.
Так,
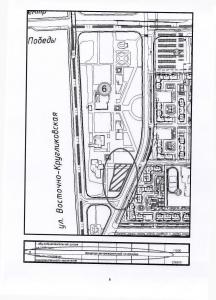
6 марта 2013 г. администрацией МО г. Краснодар с физическим лицом был заключен
договор аренды земельного участка (г. Краснодар, Прикубанский внутригородской
округ, ул. Восточно-Кругликовская, 38/4). Земельный участок имел назначение – «территории
рекреационной зоны».
Указанное физическое
лицо обратилось в администрацию МО г. Краснодар с целью изменения вида
разрешенного использования данного земельного участка с «рекреационной зоны» на
«строительства многоэтажных и среднеэтажных жилых домов, в том числе со
встроенно-пристроенными помещениями общественного назначения».
Администрацией
МО г. Краснодар было принято решение об отказе в изменении вида разрешенного
использования данного земельного участка.
Решение
администрации было обжаловано в суд.
Решением
Первомайского районного суда г. Краснодара заявленные требования были
удовлетворены.
Апелляционным
определением судебной коллегии по гражданским делам Краснодарского краевого
суда решение суда оставлено без изменения.
Определением
Верховного суда РФ от 10 сентября 2014г. №18-КГ14-95 было принято постановление
об отмене решения Первомайского районного суда г. Краснодара и апелляционного
определения судебной коллегии по гражданским делам Краснодарского краевого суда
и о принятии по делу нового решения.
Очень странным
выглядело именно то обстоятельство, что суды первой и второй инстанции, при
явном нарушении земельного и градостроительного законодательства принимали
незаконные решения. Только Верховный суд РФ разобрался в ситуации.
Суд не может – гордума Краснодара
поможет!
Поскольку
Верховный суд принял решение в интересах закона и жителей Краснодара, но не в
интересах предпринимателя-арендатора на помощь пришла городская Дума
Краснодара.
«Слуги народа» решением
городской Думы Краснодара от 20.11.2014 №70 п.2 исключили земельный участок по
адресу: г. Краснодар, Прикубанский внутригородской округ, ул. Восточно-Кругликовская,
38/4 с кадастровым номером 23:43:0142047:12854 из территории рекреационной
зоны. Данный участок был отнесен к новой территориальной зоне – Ж.2, что
является прямым нарушением законодательства о градостроительной деятельности.
Вот так народные
избранники без учета установленной законом процедуры, без проведения публичных
слушаний изменили назначение земельного участка с «рекреационной зоны» на «зону
для строительства многоэтажных и среднеэтажных жилых домов».
Действительно,
если суд принял «не правильное» решение, городская Дума Краснодара все
исправит.
Кстати в 2014
году в городской Думе Краснодара депутатов КПРФ не было.
Рашкин В.Ф. и
Обухов С.П. всегда оказывали поддержку жителям города Краснодара. Так и в это
раз по фактам нарушения градостроительного и земельного законодательства при
принятии решения городской Думы Краснодара был направлен запрос в Прокуратуру
Краснодарского края.
Прокуратура края
сообщила, что разрешение на строительство на спорном земельном участке не
выдавалось, а администрация начала принимать меры для изменения назначения
земельного участка в соответствии с требованиями закона и с учетом
постановления Верховного суда РФ.
Дополнительно
прокуратурой приняты меры по факту не исполнения ранее состоявшегося решения
суда о приведении Правил землепользования и застройки Генеральному плану города
Краснодара.
Фракция КПРФ в
Государственной Думе всегда стоит на страже интересов жителей России.








